Проекты и решенияВнедренные проектыИнтегрированный защитный видео комплекс
Рекомендации по построению систем пожарной автоматики в соответствии с СП 484.1311500.2020 изм.1
Автоматизация проектирования BolidCAD
Оборудование Болид в Едином реестре российской радиоэлектронной продукции
Приглашаем принять участие в опросе

Интегрированный защитный видео комплекс

Интегрированный защитный видео комплекс

Исполнитель:
Трубачев Сергей

Выполненные работы по проекту:
  • разработка проекта
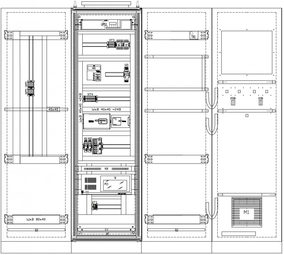
Разработка конструкторской документации шкафа интегрированного защитного видео комплекса.
Адрес объекта: Россия, Пермский край, г. Пермь

Тип объекта: Объект нефте, газодобычи, разработки полезных ископаемых (буровые, шахты, компрессорные)

Была разработана конструкторская документация шкафа интегрированного защитного видео комплекса.Комплекс построен на базе ПО: АРМ Орион Видео Про; АРМ Орион ПРО.

Для реализации проекта была использована следующая продукция

Пожарная сигнализация
АРМ
шт.
Сетевой контроллер
шт.
Прибор
шт.
Извещатель
шт.
Повторитель, преобразователь интерфейса
шт.
Прочее
шт.
1
1
1
1
1
Итого:
2
1
1
1

Установки пожаротушения
АРМ
шт.
Сетевой контроллер
шт.
Прибор
шт.
Извещатель
шт.
Повторитель, преобразователь интерфейса
шт.
Прочее
шт.
1
1
1
1
Итого:
1
1
1
1

Видеонаблюдение
АРМ
шт.
Сетевой контроллер
шт.
Прибор
шт.
Извещатель
шт.
Повторитель, преобразователь интерфейса
шт.
Прочее
шт.
1
1
Видеокамера
2
Итого:
2
2