Проекты и решенияВнедренные проектыШкаф пожарной автоматики для системы газового пожаротушения МКС
Рекомендации по построению систем пожарной автоматики в соответствии с СП 484.1311500.2020 изм.1
Автоматизация проектирования BolidCAD
Оборудование Болид в Едином реестре российской радиоэлектронной продукции
Приглашаем принять участие в опросе

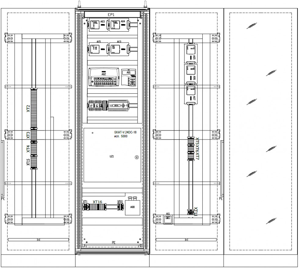
Шкаф пожарной автоматики для системы газового пожаротушения МКС

Шкаф пожарной автоматики для системы газового пожаротушения МКС

Исполнитель:
Трубачев Сергей

Выполненные работы по проекту:
  • разработка проекта
  • монтаж, пусконаладка
Разработка конструкторской документации шкафа пожарной автоматики для системы газового пожаротушения. Разработка конфигураций и наладка ШПА.
Адрес объекта: Россия, Пермский край, г Пермь

Тип объекта: Объект нефте, газодобычи, разработки полезных ископаемых (буровые, шахты, компрессорные)

Был разработан шкаф пожарной автоматики для системы газового пожаротушения. Алгоритмы пожаротушения реализованы на связке Сигнал-20М, С2000-КПБ, С2000М с применением сценариев управления. Так же организована линия связи при помощи С2000-ПИ для подключения С2000-БКИ в операторной.

Для реализации проекта была использована следующая продукция

Пожарная сигнализация
АРМ
шт.
Сетевой контроллер
шт.
Прибор
шт.
Извещатель
шт.
Повторитель, преобразователь интерфейса
шт.
Прочее
шт.
1
1
1
3
2
1
2
БЗК
1
Итого:
1
8
2
1

Установки пожаротушения
АРМ
шт.
Сетевой контроллер
шт.
Прибор
шт.
Извещатель
шт.
Повторитель, преобразователь интерфейса
шт.
Прочее
шт.
1
1
1
3
2
2
БЗК
1
Итого:
1
7
2
1

Оповещение о пожаре
АРМ
шт.
Сетевой контроллер
шт.
Прибор
шт.
Извещатель
шт.
Повторитель, преобразователь интерфейса
шт.
Прочее
шт.
1
1
1
3
2
2
БЗК
1
Итого:
1
7
2
1

Охранная сигнализация
АРМ
шт.
Сетевой контроллер
шт.
Прибор
шт.
Извещатель
шт.
Повторитель, преобразователь интерфейса
шт.
Прочее
шт.
1
1
1
3
2
2
Итого:
1
7
2