Проекты и решенияВнедренные проектыГипермаркет техники г.Истра
Рекомендации по построению систем пожарной автоматики в соответствии с СП 484.1311500.2020 изм.1
Автоматизация проектирования BolidCAD
Оборудование Болид в Едином реестре российской радиоэлектронной продукции
Приглашаем принять участие в опросе

Гипермаркет техники г.Истра

Гипермаркет техники г.Истра

Исполнитель:
Броня

Выполненные работы по проекту:
  • разработка проекта
  • монтаж, пусконаладка
Монтаж систем охраны, видеонаблюдения и СКУД в помещении торгового центра.
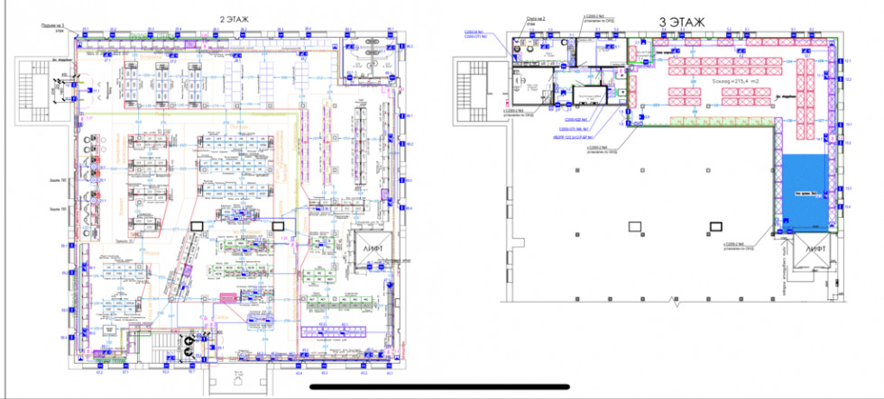
Адрес объекта: Россия, Московская обл, г Истра

Тип объекта: Объект торговли (Супермаркет, магазин)

Объект имеет 2 этажа. Первый - торговый зал. Второй - офис, склад. Площадь зала - 855м. Склад - 225м. Офисная часть - 83.5м. Был произведен монтаж 32 IP-камер по территории всего объекта. Видеорегистратор в зале был убран в шкаф, который был прикреплен под потолком к стене. Второй регистратор установили в шкаф в серверном помещении. Также туда был установлен ИБП, и сетевые коммутаторы. СКУД включал в себя ЭМЗ, контроллеры С2000-2, датчики объема и СМК. Между собой контроллеры соединены по 485 интерфейсу. Охранная сигнализация построена на контроллерах КДЛ, С2000-АР8, С2000-СП1 и пульте С2000М. Все контроллеры, за исключением АР8 установлены на стене в серверном помещении. АР8 установлены по периметру всего объекта. СМК установлены на каждое окно, дверь и рольставни. Также у каждого окна установлен СВЧ-датчик. В вентиляционной шахте также установлен датчик объема в местах захода в помещении. Сирена установлена надо каждым выходом из зала, и офисной частью. Также были смонтированы тревожные кнопки в зоне касс и в офисе.

Для реализации проекта была использована следующая продукция

Охранная сигнализация
АРМ
шт.
Сетевой контроллер
шт.
Прибор
шт.
Извещатель
шт.
Повторитель, преобразователь интерфейса
шт.
Прочее
шт.
1
1
2
2
9
1
4
2
22
64
8
6
Итого:
1
19
96
6

Видеонаблюдение
АРМ
шт.
Сетевой контроллер
шт.
Прибор
шт.
Извещатель
шт.
Повторитель, преобразователь интерфейса
шт.
Прочее
шт.
2
32
1
2
2
Итого:
39

Контроль и управление доступом
АРМ
шт.
Сетевой контроллер
шт.
Прибор
шт.
Извещатель
шт.
Повторитель, преобразователь интерфейса
шт.
Прочее
шт.
1
1
2
2
2
2
Итого:
2
8