Проекты и решенияВнедренные проектыООО Омега. Карпатская 14, корп.6
Рекомендации по построению систем пожарной автоматики в соответствии с СП 484.1311500.2020 изм.1
Автоматизация проектирования BolidCAD
Оборудование Болид в Едином реестре российской радиоэлектронной продукции
Приглашаем принять участие в опросе

ООО Омега. Карпатская 14, корп.6

ООО Омега. Карпатская 14, корп.6

Исполнитель:
Петербург Сервис (HELMAN Group)

Выполненные работы по проекту:
  • разработка проекта
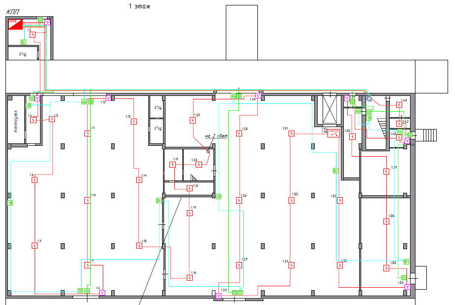
РАБОЧАЯ ДОКУМЕНТАЦИЯ Система пожарной сигнализации Система оповещения и управления эвакуацией
Адрес объекта: Россия, г Санкт-Петербург, ул. Карпатская, 14, корп.6, лит. А.

Тип объекта: Промышленный объект (Заводы, фабрики, предприятия)

1. Общая часть
Исходными данными послужили:
- Чертежи архитектурно-строительные;
- Техническое задание.
2. Краткая характеристика объекта
Объект – Складские помещения по адресу: 192289, г. Санкт-Петербург, ул. Карпатская, 14, корп.6,
лит. А.
Класс по функциональной пожарной опасности защищаемых зданий – Ф5.1, Ф5.2.
Категория электроснабжения объекта – III

Для реализации проекта была использована следующая продукция

Пожарная сигнализация
АРМ
шт.
Сетевой контроллер
шт.
Прибор
шт.
Извещатель
шт.
Повторитель, преобразователь интерфейса
шт.
Прочее
шт.
1
1
1
19
147
Итого:
1
2
166

Оповещение о пожаре
АРМ
шт.
Сетевой контроллер
шт.
Прибор
шт.
Извещатель
шт.
Повторитель, преобразователь интерфейса
шт.
Прочее
шт.
1
Итого:
1