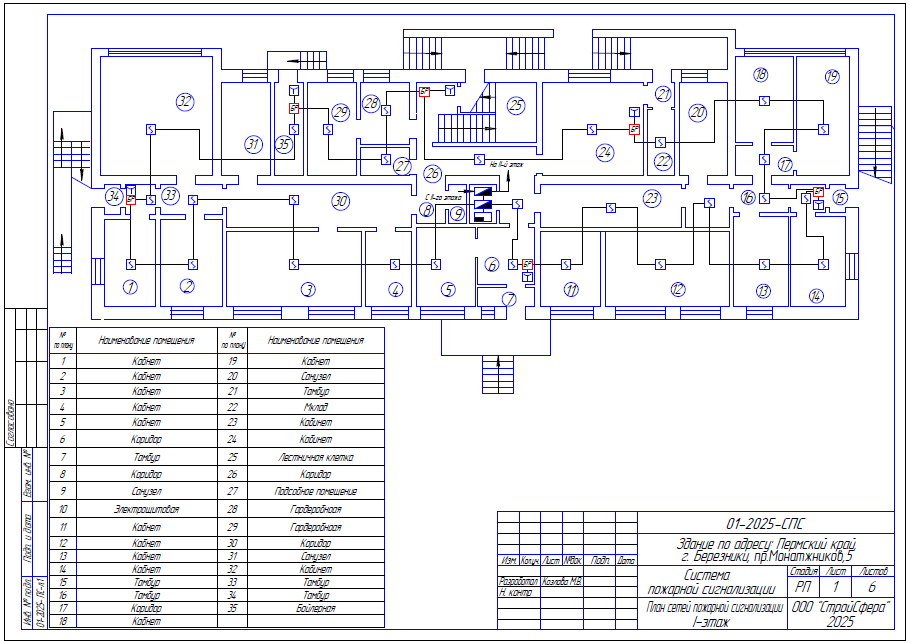
Проекты и решенияВнедренные проектыКапитальный ремонт АПС и СОУЭ в здании по адресу: Пермский край, г. Березники, пр. Монтажников, 5
Рекомендации по построению систем пожарной автоматики в соответствии с СП 484.1311500.2020 изм.1
Автоматизация проектирования BolidCAD
Оборудование Болид в Едином реестре российской радиоэлектронной продукции
Приглашаем принять участие в опросе

Капитальный ремонт АПС и СОУЭ в здании по адресу: Пермский край, г. Березники, пр. Монтажников, 5

Капитальный ремонт АПС и СОУЭ в здании по адресу: Пермский край, г. Березники, пр. Монтажников, 5

Исполнитель:
ООО"СтройСфера"

Выполненные работы по проекту:
  • разработка проекта
«Проектные работы по системе пожарной сигнализации (СПС) и системе оповещения и управления эвакуацией людей (СОУЭ)» по адресу: Пермский край, г. Березники, пр.Монтажников, д.5.
Адрес объекта: Россия, Пермский край, г. Березники, пр.Монтажников, д.5.

Тип объекта: Офисный центр

Для реализации проекта была использована следующая продукция

Пожарная сигнализация
АРМ
шт.
Сетевой контроллер
шт.
Прибор
шт.
Извещатель
шт.
Повторитель, преобразователь интерфейса
шт.
Прочее
шт.
1
1
1
1
9
ДИП-34А
37
БРИЗ исп.02
9
Итого:
1
3
55

Оповещение о пожаре
АРМ
шт.
Сетевой контроллер
шт.
Прибор
шт.
Извещатель
шт.
Повторитель, преобразователь интерфейса
шт.
Прочее
шт.
1
4
1
Итого:
1
5