Исполнитель:
ООО"СтройСфера"
Выполненные работы по проекту:- разработка проекта
- монтаж, пусконаладка
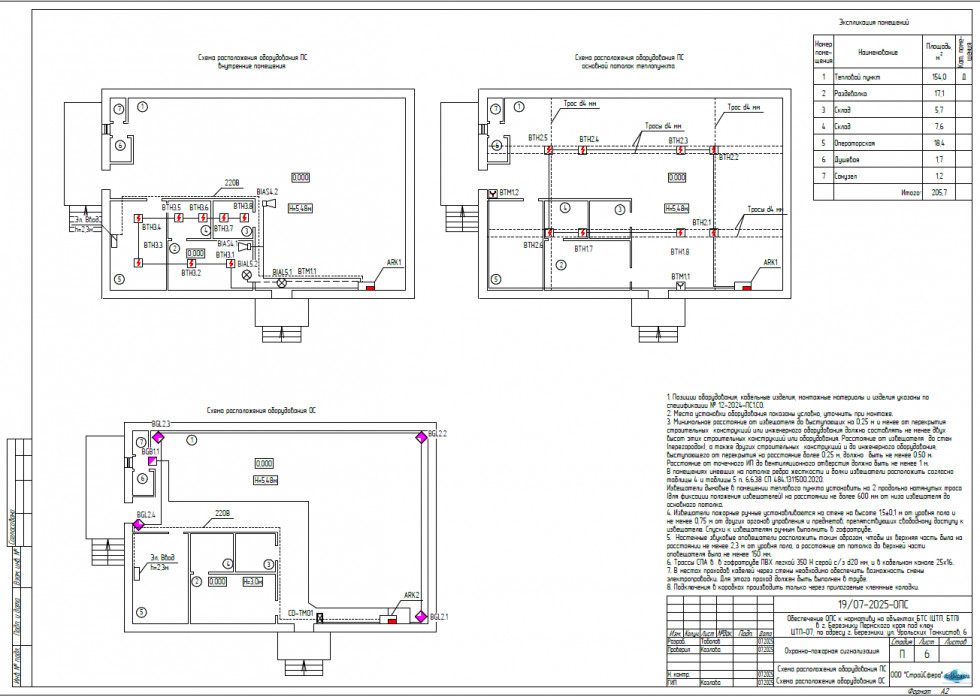
Обеспечение ОПС к нормативу на объектах БТС (ЦТП, БТП)
в г. Березники Пермского края под ключ
ЦТП-07, по адресу г. Березники, ул. Уральских Танкистов, 6
Адрес объекта: Россия, Пермский край, г. Березники, ул. Уральских Танкистов, 6
Тип объекта: Объект энергетики (АЭС, ГРЭС, ТЭЦ, подстанции)
Для реализации проекта была использована следующая продукция
| Пожарная сигнализация |
|---|
АРМ шт. | Сетевой контроллер шт. | Прибор шт. | Извещатель шт. | Повторитель, преобразователь интерфейса шт. | Прочее шт. |
|---|
| | 1 1 1 2 | | | |
| Итого: | | 5 | | | |
| Охранная сигнализация |
|---|
АРМ шт. | Сетевой контроллер шт. | Прибор шт. | Извещатель шт. | Повторитель, преобразователь интерфейса шт. | Прочее шт. |
|---|
| | 1 1 1 2 | | | |
| Итого: | | 5 | | | |