Исполнитель:
ООО"СтройСфера"
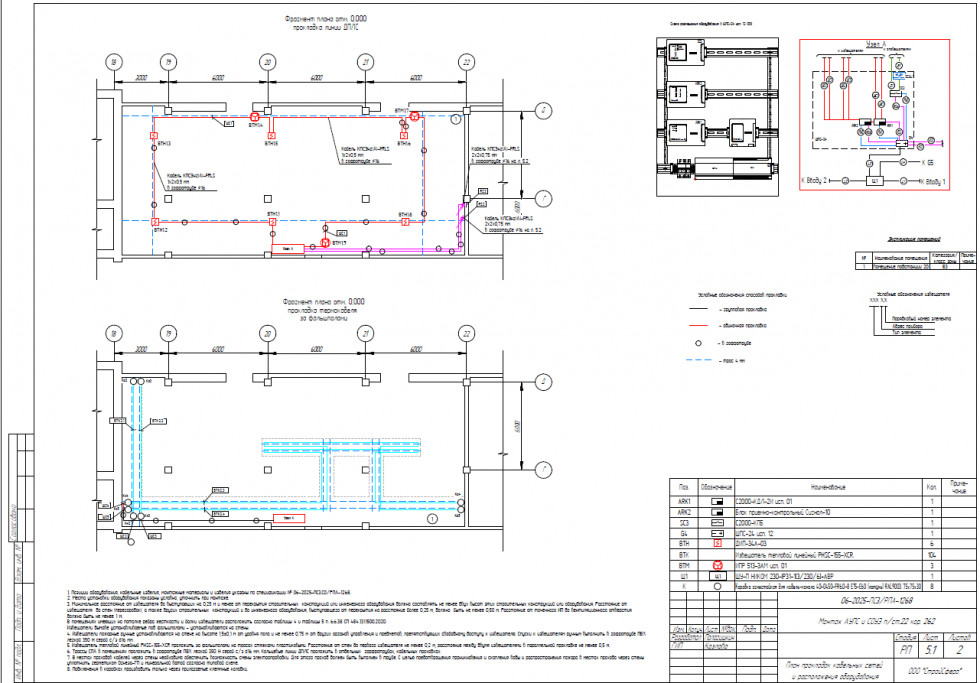
Выполненные работы по проекту:- разработка проекта
- монтаж, пусконаладка
ЗАВОДСКИЕ УСЛОВИЯ - ПРОМЫШЛЕННАЯ ПЛОЩАДКА ФИЛИАЛА "АЗОТ" АО "ОХК "УРАЛХИМ" В Г. БЕРЕЗНИКИ ПЕРМСКОГО КРАЯ
Адрес объекта: Россия, Приволжский, Пермский, Березники, Березники, Чуртанское шоссе, 75
Тип объекта: Промышленный объект (Заводы, фабрики, предприятия)
Для реализации проекта была использована следующая продукция
| Пожарная сигнализация |
|---|
АРМ шт. | Сетевой контроллер шт. | Прибор шт. | Извещатель шт. | Повторитель, преобразователь интерфейса шт. | Прочее шт. |
|---|
| | 1 1 1 1 1 | 6 3 | | |
| Итого: | | 5 | 9 | | |
| Оповещение о пожаре |
|---|
АРМ шт. | Сетевой контроллер шт. | Прибор шт. | Извещатель шт. | Повторитель, преобразователь интерфейса шт. | Прочее шт. |
|---|
| | 1 1 1 1 1 | | | |
| Итого: | | 5 | | | |