Проекты и решенияПроектно-монтажные организацииБроня
Рекомендации по построению систем пожарной автоматики в соответствии с СП 484.1311500.2020 изм.1
Автоматизация проектирования BolidCAD
Оборудование Болид в Едином реестре российской радиоэлектронной продукции
Приглашаем принять участие в опросе

Броня

Адрес: г. Кашира
Телефоны: +79166826656
Email: mad-mike@inbox.ru

Создание проектов, монтаж оборудования, пуско-наладочные работы, обслуживание систем.

Занимаемся установкой, обслуживанием слаботочных систем: СКУД, видеонаблюдение, охранные сигнализации, «умный дом» в частных домах, квартирах, магазинах, складских помещениях и т. д. Сотрудничаем с крупными и проверенными производителями охранного оборудования.
Список проектов, на которых применяется оборудование НВП "Болид".
По определенным причинам Исполнители не могут публиковать полный перечень выполненных проектов.
За более полной информацией можете обратиться к Исполнителю.


Гипермаркет техники г.Истра
Гипермаркет техники г.Истра

Монтаж систем охраны, видеонаблюдения и СКУД в помещении торгового центра.

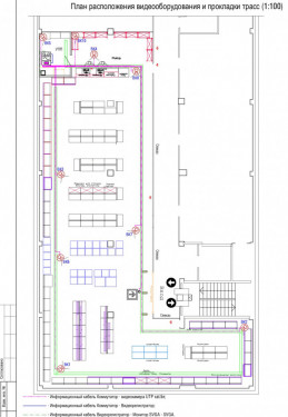
Гипермаркет техники Зарайск
Гипермаркет техники Зарайск

Монтаж системs видеонаблюдения в магазине электроники.