Адрес: 195279, г.Санкт-Петербург, ш.Революции, 88, лит.Ж, пом. 24-Н
Телефоны: 88124099080
Email: info@pitervision.ru
Cайт: helman.su/
Группа компаний Helman Group предоставляет услуги проектирования, поставки оборудования, производство строительно-монтажных работ, пуско-наладочных работ, а также услуг технического обслуживания.
Группа компаний Helman Group предоставляет услуги проектирования, поставки оборудования, производство строительно-монтажных работ, пуско-наладочных работ, а также услуг технического обслуживания следующих систем:РАБОЧАЯ ДОКУМЕНТАЦИЯ Система пожарной сигнализации Система оповещения и управления эвакуацией Объект - Офисное помещение газеты КоммерсантЪ по адресу: Санкт-Петербург, Харьковская ул., 8а Этажность зданий – 1 этаж
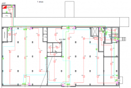
РАБОЧАЯ ДОКУМЕНТАЦИЯ Система пожарной сигнализации Система оповещения и управления эвакуацией. Объект - Производственно-складское помещение по адресу: 194044, г. Санкт-Петербург, Малый Сампсониевский пр-т, д. 2, Литер А, помещения 10 и 21Н.
РАБОЧАЯ ДОКУМЕНТАЦИЯ Система пожарной сигнализации Система оповещения и управления эвакуацией Автоматическая установка пожаротушения
РАБОЧАЯ ДОКУМЕНТАЦИЯ Система пожарной сигнализации Система оповещения и управления эвакуацией