Проекты и решенияВнедренные проекты
Рекомендации по построению систем пожарной автоматики в соответствии с СП 484.1311500.2020 изм.1
Автоматизация проектирования BolidCAD
Оборудование Болид в Едином реестре российской радиоэлектронной продукции
Приглашаем принять участие в опросе

Внедренные проекты

Продукцией компании «Болид» оснащено около 1 миллиона объектов.
На карте размещены объекты, информация по которым предоставлена компаниями, зарегистрированными в партнерском разделе сайта.
По определенным причинам Исполнители не могут публиковать полный перечень выполненных проектов.
За более полной информацией можете обратиться к Исполнителю.


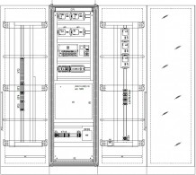
Шкаф пожарной автоматики для системы порошкового пожаротушения ДКУ
Шкаф пожарной автоматики для системы порошкового пожаротушения ДКУ

Разработка конструкторской документации шкафа пожарной автоматики для системы порошкового пожаротушения. Разработка конфигураций и наладка ШПА.

Исполнитель:
Трубачев Сергей
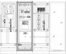
Шкаф пожарной автоматики для системы газового пожаротушения УЛЛФ
Шкаф пожарной автоматики для системы газового пожаротушения УЛЛФ

Разработка конструкторской документации шкафа пожарной автоматики для системы газового пожаротушения. Разработка конфигураций и наладка ШПА.

Исполнитель:
Трубачев Сергей
Шкаф пожарной автоматики для системы газового пожаротушения участка испытаний
Шкаф пожарной автоматики для системы газового пожаротушения участка испытаний

Разработка конструкторской документации шкафа пожарной автоматики для системы газового пожаротушения. Разработка конфигураций и наладка ШПА.

Исполнитель:
Трубачев Сергей
Шкаф пожарной автоматики для системы газового пожаротушения МКС
Шкаф пожарной автоматики для системы газового пожаротушения МКС

Разработка конструкторской документации шкафа пожарной автоматики для системы газового пожаротушения. Разработка конфигураций и наладка ШПА.

Исполнитель:
Трубачев Сергей
Блочно насосная станция пенного пожаротушения ЗАО "Сибур-Химпром"
Блочно насосная станция пенного пожаротушения ЗАО "Сибур-Химпром"

Проектирование и наладка блочно насосной станции пенного пожаротушения ЗАО "Сбур-Химпром"

Исполнитель:
Трубачев Сергей
Березовские электрические сети
Березовские электрические сети

Охранно-пожарная сигнализация.

Исполнитель:
ООО "Рубеж"
Банк "Газпром"
Банк "Газпром"

Охранно-пожарная сигнализация с контролем доступа.

Исполнитель:
ООО "Рубеж"
Администрация
Администрация

Охранная и пожарная сигнализация

Исполнитель:
ООО "Рубеж"
Супермаркет "Кора"
Супермаркет "Кора"

Охранная и пожарная сигнализация.

Исполнитель:
ООО "Рубеж"
Отдел МВД России по г. Березовскому
Отдел МВД России по г. Березовскому

Пожарная сигнализация и оповещение.

Исполнитель:
ООО "Рубеж"
Детский сад "Журавушка"
Детский сад "Журавушка"

Пожарная сигнализация и дымоудаление.

Исполнитель:
ООО "Рубеж"
Распределительная подстанция №10
Распределительная подстанция №10

Пожарная сигнализация и оповещение при пожаре

Исполнитель:
ООО "Рубеж"