Проекты и решенияВнедренные проекты
Рекомендации по построению систем пожарной автоматики в соответствии с СП 484.1311500.2020 изм.1
Автоматизация проектирования BolidCAD
Оборудование Болид в Едином реестре российской радиоэлектронной продукции
Приглашаем принять участие в опросе

Внедренные проекты

Продукцией компании «Болид» оснащено около 1 миллиона объектов.
На карте размещены объекты, информация по которым предоставлена компаниями, зарегистрированными в партнерском разделе сайта.
По определенным причинам Исполнители не могут публиковать полный перечень выполненных проектов.
За более полной информацией можете обратиться к Исполнителю.


СПС и СОУЭ Южно-Курильское ДУ
СПС и СОУЭ Южно-Курильское ДУ

Государственное Унитарное Предприятие Сахалинской Области "Южно-Курильское Дорожное Управление"

Исполнитель:
ООО "Верта"
СПС и СОУЭ
СПС и СОУЭ

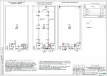
Поизводственное здание. Пожарная сигнализация и оповещение о пожаре. Адресная система. Связь между здания по ЛВС, используя С2000-ethernet

Исполнитель:
АТОЛЛ
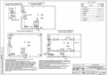
СПС, СОУЭ, ОС, СКУД, ВИДЕОНАБЛЮДЕНИЕ
СПС, СОУЭ, ОС, СКУД, ВИДЕОНАБЛЮДЕНИЕ

Площадка водозаборных сооружений и станции водоподготовки. Административно-бытовой корпус (АБК) с контрольно-пропускным пунктом (КПП).

Исполнитель:
ООО "Верта"
Типография Деденево - АПС дооснащение
Типография Деденево - АПС дооснащение

Дооснащение существующей общей системы АПС\СОУЭ

Исполнитель:
ООО "ДВ-Инжиниринг"
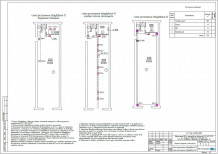
Мебельное пр-во 2800 м2 \ Щелково
Мебельное пр-во 2800 м2 \ Щелково

Монтаж СПЗ, АПС/СОУЭ Мебельное производство: 1300 м2 - само производство, 1300 м2 - склад со стеллажным хранением, 200 м2 - соединительное здание между ними

Исполнитель:
ООО "ДВ-Инжиниринг"
Эдас Пак мойка печатных машин АУПТ
Эдас Пак мойка печатных машин АУПТ

Монтаж автоматической установки пожаротушения: на участок мойки печатных машин.

Исполнитель:
ООО "ДВ-Инжиниринг"
Прачечный комплекс санатория "Машук Аква Терм"
Прачечный комплекс санатория "Машук Аква Терм"

В проекте используется канал связи оптоволокно на базе преобразователей НВП Болид RX-FX-SW40 для связи между корпусами и кпп.

Исполнитель:
Общество с ограниченной ответственностью "СИГНАЛ СК"
Санаторно куротный комплекс "Лесной"
Санаторно куротный комплекс "Лесной"

Комплекс зданий.Спальный ,Лечебный,Спортивный,Административный,Жилые котеджи,Столовая,Гаражнные боксы.Пожарная Сигнализация СОУЭ.

Исполнитель:
Общество с ограниченной ответственностью "СИГНАЛ СК"
СПС и СОУЭ
СПС и СОУЭ

Муниципальное автономное общеобразовательное учреждение средняя общеобразовательная школа № 19 с. Дальнее

Исполнитель:
ООО "Верта"
СПС и СОУЭ
СПС и СОУЭ

Муниципальное бюджетное дошкольное образовательное учреждение детский сад «Аленький цветочек» Курильского муниципального округа Сахалинской области

Исполнитель:
ООО "Верта"
Монтаж систем АПС и СОУЭ в административно-производственном комплексе
Монтаж систем АПС и СОУЭ в административно-производственном комплексе

Монтаж систем АПСи СОУЭ в здании складов и администрации в г. Реутове.

Исполнитель:
ООО "СВР-Техно"
Монтаж систем безопасности в подземном паркинге ЖК Кленовый дом
Монтаж систем безопасности в подземном паркинге ЖК Кленовый дом

Монтаж систем безопасности в паркинге ЖК Кленовый дом

Исполнитель:
ООО "СВР-Техно"
Страницы3456789101112