Проекты и решенияПроектно-монтажные организацииТрубачев Сергей
Рекомендации по построению систем пожарной автоматики в соответствии с СП 484.1311500.2020 изм.1
Автоматизация проектирования BolidCAD
Оборудование Болид в Едином реестре российской радиоэлектронной продукции
Приглашаем принять участие в опросе

Трубачев Сергей

Адрес: г. Пермь ул. Мира 101
Телефоны: +79097291498
Email: sky-lar@mail.ru
Cайт: www.bolid-service.ru

Выполняю работы по проектированию, пусконаладке, вводу в эксплуатацию комплексных систем безопасности на базе ИСО "ОРИОН".

Список проектов, на которых применяется оборудование НВП "Болид".
По определенным причинам Исполнители не могут публиковать полный перечень выполненных проектов.
За более полной информацией можете обратиться к Исполнителю.


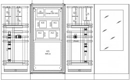
Шкаф пожарной автоматики АСПТ, ПС, ОС, СОУЭ мобильной компрессорной установки
Шкаф пожарной автоматики АСПТ, ПС, ОС, СОУЭ мобильной компрессорной установки

Разработка конструкторской документации шкафа пожарной автоматики для системы газового пожаротушения. Разработка конфигураций и наладка ШПА.

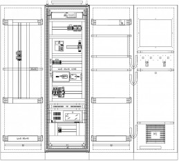
Интегрированный защитный видео комплекс
Интегрированный защитный видео комплекс

Разработка конструкторской документации шкафа интегрированного защитного видео комплекса.

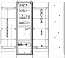
Шкаф пожарной автоматики для системы порошкового пожаротушения ДКУ
Шкаф пожарной автоматики для системы порошкового пожаротушения ДКУ

Разработка конструкторской документации шкафа пожарной автоматики для системы порошкового пожаротушения. Разработка конфигураций и наладка ШПА.

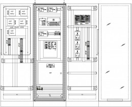
Шкаф пожарной автоматики для системы газового пожаротушения УЛЛФ
Шкаф пожарной автоматики для системы газового пожаротушения УЛЛФ

Разработка конструкторской документации шкафа пожарной автоматики для системы газового пожаротушения. Разработка конфигураций и наладка ШПА.

Шкаф пожарной автоматики для системы газового пожаротушения участка испытаний
Шкаф пожарной автоматики для системы газового пожаротушения участка испытаний

Разработка конструкторской документации шкафа пожарной автоматики для системы газового пожаротушения. Разработка конфигураций и наладка ШПА.

Шкаф пожарной автоматики для системы газового пожаротушения МКС
Шкаф пожарной автоматики для системы газового пожаротушения МКС

Разработка конструкторской документации шкафа пожарной автоматики для системы газового пожаротушения. Разработка конфигураций и наладка ШПА.

Блочно насосная станция пенного пожаротушения ЗАО "Сибур-Химпром"
Блочно насосная станция пенного пожаротушения ЗАО "Сибур-Химпром"

Проектирование и наладка блочно насосной станции пенного пожаротушения ЗАО "Сбур-Химпром"